|
FQ41F46襯氟法蘭球閥原理作用: 襯氟法蘭球閥就是將通用的Q41F浮動襯氟球閥進行更改,使閥體的內壁、內件外部全都覆蓋上氟塑料,凡是有介質接觸的地方都襯有氟塑料,從而達到耐腐蝕性能。 襯氟法蘭球閥內腔及球體均采用高壓注塑工藝襯有耐腐蝕、耐老化的聚全氟乙丙?。‵46),襯氟法蘭球閥具有可靠的耐腐蝕性和密封性。廣泛用于化工、石油、冶金、醫藥等工業部門,實現對生產過程中酸、堿等強腐蝕介質的調節或切斷,在水處理過程控制中使用效果較明顯。 FQ41F46襯氟法蘭球閥性能特點: ①采用FEP襯里層的球閥,具有***高的化學穩定性,可以適用除"熔融堿金屬和元素氟",以外其它任何強腐蝕性質; ②采用全通徑、浮動球結構,閥門可在整個壓力范圍內進行無泄漏關閉,更便于管路系統的通球掃線和管路維護; ③啟閉件球件與閥桿鑄(鍛)為一體,杜絕了由于壓力變化引起閥桿沖出承壓件內的可能性,從根本上保證了工程中的使用安全性; ④結構緊湊合理,閥體內腔空間較小,減小了介質滯留,另外,特殊的模壓工藝,使密封面致密度良好,加之人字環形PTFE填料組合,使閥門達到零泄漏。 FQ41F46襯氟法蘭球閥技術參數:
FQ41F46襯氟法蘭球閥部件材質:
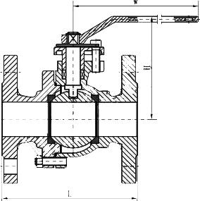
FQ41F46襯氟法蘭球閥外形尺寸:
|
||||||||||||||||||||||||||||||||||||||||||||||||||||||||||||||||||||||||||||||||||||||||||||||||||||||||||||||||||||||||||||||||||||||||||||||||||||||||||||||||||||||||||||||||||||||||||||||||||||||||||||||||||||||||||||||||||||||||||||||||||||||||||||||||||||||||||||||||||||||||||||||
-
具有結構緊湊、啟閉靈活、耐腐蝕性能強。
-
體積小、輕便、性能可靠、配套簡單、流通能力大等優點。
-
裝配電動/氣動執行器可變成電動/氣動開關閥或電動/氣動切斷閥。
-
特殊的模壓工藝,使密封面致密度良好,加之人字環形PTFE填料組合,使閥門達到零泄漏。
-
廣泛用于化工、石油、冶金、醫藥等工業部門。
-
根據用戶提供的流量、壓力提供選型規格書及控制方案圖。


